Objekt­beschreibung

In exklusiver Lage von Eichenried präsentiert sich diese großzügige Doppelhaushälfte mit ca. 315 m² Wohn-/ Nutzfläche auf einem weitläufigen Grundstück von ca. 2.000 m². Die Immobilie bietet ideale Voraussetzungen für Familien und anspruchsvolle Mieter, die Wert auf Komfort, Platz und ein hochwertiges Wohnumfeld legen.

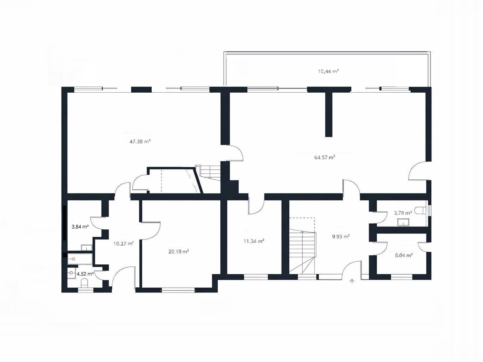
Das Herzstück des Hauses bildet der offen gestaltete Wohn- und Essbereich im Erdgeschoss mit direktem Zugang zur Terrasse und in den Garten. Großzügige Fensterflächen sorgen für eine helle und freundliche Atmosphäre. Die Küche fügt sich harmonisch in den Wohnbereich ein und bietet ausreichend Platz für gemeinsames Kochen und geselliges Beisammensein. Der repräsentative Eingangsbereich mit Gäste-WC und Hauswirtschaftsraum ergänzt diese Etage funktional. Zusätzlich stehen ein weiterer ca. 47 m² großer Wohnbereich, ein Gästezimmer, ein Büro sowie ein weiteres Duschbad zur Verfügung.

Im Obergeschoss stehen vier Schlafzimmer zur Verfügung, darunter ein großzügiges Master Schlafzimmer mit Bad en Suite. Bis auf ein Zimmer verfügen alle Räume über einen direkten Zugang zum Balkon und oder zur Dachterrasse. Ergänzt wird dies durch ein weiteres modernes Tageslichtbad mit Badewanne und Dusche sowie ein separates WC, sodass ein hoher Wohnkomfort für alle Bewohner gewährleistet ist.

Der großzügige Außenbereich überzeugt mit einem weitläufigen Garten und einer sonnigen Südwestterrasse, die zu entspannter Freizeitgestaltung im Freien einlädt. Hier finden sowohl Familien als auch Naturliebhaber ihren idealen Rückzugsort. Die am Grundstück entlangfließende Goldach unterstreicht die naturnahe Lage und rundet diese besondere Familienidylle stimmungsvoll ab.

Ergänzt wird dieses attraktive Mietangebot durch ausreichend Stauraum in den beiden Doppelgaragen, die den Alltag zusätzlich erleichtern.

Ausstattung

- Großzügiger Wohn- und Essbereich mit ca. 65 m² und Kaminanschluss sowie zusätzlicher separater Wohnbereich mit ca. 47 m²
- Einbauküche mit weißen Fronten und Arbeitsfläche in Holzoptik; ausgestattet mit Cerankochfeld, Backofen, Spülmaschine, Kühlschrank und Edelstahlspülbecken
- Heller, offen gestalteter Grundriss mit großzügigen Fensterflächen und direktem Terrassenzugang
- Mehrere geräumige Zimmer mit vielseitigen Nutzungsmöglichkeiten als Schlaf-, Kinder-, Arbeits- oder Gästezimmer sowie Zugang zu Balkon und Dachterrasse
- Zwei großzügige Tageslichtbäder im Obergeschoss mit hellen Fliesen; ausgestattet mit Badewanne, Dusche, Waschtisch, beleuchtetem Spiegelschrank sowie Armaturen von Hansgrohe und Baliv
- Separates Duschbad im Erdgeschoss mit Dusche, Waschtisch und WC
- Zwei zusätzliche Gäste-Toiletten
- Hochwertige 3-fach isolierte Kunststoff-/ Aluminiumfenster von Schmidt Visbek
- Elektrische Rollläden in allen Räumen
- Be- und Entlüftungsanlage mit Wärmerückgewinnung
- Fußbodenheizung mit Einzelraumsteuerung über digitale Thermostate
- Hochwertige Bodenbeläge aus hellen Fliesen und moderne Vinylböden in Holzoptik
- Zwei Hauswirtschaftsräume im Erdgeschoss
- Zusätzlicher Abstellraum unter der Treppe
- Video-Gegensprechanlage (Comelit)
- Moderne Außenbeleuchtung mit Bewegungsmelder
- Terrassenbereiche mit Stromanschlüssen und Wasseranschluss zur Gartenbewässerung
- Weitläufiger Garten mit automatischer Rasenpflege durch bereits installierten Mähroboter
- Vier Stellplätze in zwei Doppelgaragen mit Stromanschluss und zusätzlichem Stauraum im Speicher
- Zeitgemäße Haustechnik mit Glasfaseranschluss sowie Netzwerkdosen in allen Zimmern

Sonstige Informationen

Alle Angaben in diesem Exposé beruhen auf Informationen, die uns vom Auftraggeber zur Verfügung gestellt wurden. Für deren Vollständigkeit, Richtigkeit und Aktualität übernehmen wir keine Gewähr. Zwischenverkauf bzw. Zwischenvermietung bleibt vorbehalten. Unsere Allgemeinen Geschäftsbedingungen gelten. Diese stellen wir Ihnen auf Wunsch gerne zur Verfügung. Für weitere Informationen zur Immobilie sowie zur Vereinbarung eines Besichtigungstermins stehen wir Ihnen jederzeit gerne zur Verfügung.

Objektdaten
  • Objekt ID
    10563
  • Objekttypen
    Doppelhaushälfte, Haus
  • Adresse
    85452 Moosinning
    Bayern
  • Etagen im Haus
    2
  • Wohnfläche ca.
    315 m²
  • Grund­stück ca.
    2.000 m²
  • Zimmer
    8
  • Schlafzimmer
    5
  • Badezimmer
    2
  • Separate WC
    1
  • Balkone
    1
  • Terrassen
    1
  • Heizungsart
    Zentralheizung, Fußbodenheizung
  • Wesentlicher Energieträger
    Flüssiggas (eigener Tank)
  • Baujahr
    2021
  • Zustand
    neuwertig
  • Bauweise
    Massiv
  • Garage
    Stellplatzmiete: 75 EUR (Anzahl: 4)
  • Kaution
    12.600,00 EUR
  • Nettokaltmiete
    4.200,00 EUR
  • Nebenkosten
    700,00 EUR
  • Warmmiete
    4.900,00 EUR (Heizkosten enthalten)
Ausstattung / Merkmale
  • Abstellraum
  • Badewanne
  • Balkon
  • Dusche
  • Einbauküche
  • Fliesenboden
  • Garage
  • Gartennutzung
  • Gäste-WC
  • Haustiere erlaubt
  • Kabel-/Sat-TV
  • Kein Keller
  • Massivbauweise
  • Separates WC
  • Tageslichtbad
  • Terrasse
Energieausweis
  • Energieausweistyp
    Bedarfs­ausweis
  • Ausstellungsdatum
    12.01.2026
  • Gültig bis
    14.01.2036
  • Gebäudeart
    Wohngebäude
  • Baujahr lt. Energieausweis
    2021
  • Primärenergieträger
    Flüssiggas
  • Endenergie­bedarf
    58,80 kWh/(m²·a)
  • Energie­effizienz­klasse
    B
0 25 50 75 100 125 150 175 200 225 250+ H G F E D C B A A+ H G F E D C B A A+ Endenergiebedarf 58,80 kWh/(m²·a)
Lage

Die Immobilie befindet sich in einer exklusiven Wohnlage von Eichenried, einer beliebten Gemeinde im Landkreis Erding. Die Umgebung ist geprägt von gepflegten Ein- und Zweifamilienhäusern sowie großzügigen Grünflächen und bietet ein angenehmes, familienfreundliches Wohnumfeld.

Geschäfte des täglichen Bedarfs, Kindergärten, Schulen und medizinische Versorgungseinrichtungen sind in Finsing sowie in den umliegenden Gemeinden gut erreichbar. Ergänzend stehen in den nahegelegenen Orten Ismaning und Erding weitere umfangreiche Einkaufs- und Freizeitmöglichkeiten zur Verfügung.

Zahlreiche Erholungsmöglichkeiten, darunter Rad- und Wanderwege, Sportvereine sowie Naherholungsgebiete, befinden sich in unmittelbarer Umgebung und tragen zur hohen Wohnqualität bei. Für Golfliebhaber befindet sich beispielsweise der Golfclub München Eichenried in kurzer Entfernung.

Die Verkehrsanbindung ist als gut zu bezeichnen. Über die Bundesstraße B388 sowie die Autobahnen A9 und A99 besteht eine zügige Verbindung in Richtung München und Flughafen. Der Flughafen München ist in unter 20 Fahrminuten erreichbar. Die Münchner Innenstadt erreicht man mit dem Pkw in etwa 35 Minuten, abhängig von der Verkehrslage.

Der öffentliche Personennahverkehr ist durch eine Busanbindung in Richtung Erding und Ismaning gewährleistet. Von dort bestehen S-Bahn Anschlüsse mit direkter Verbindung in die Münchner Innenstadt. Die nächste Bushaltestelle befindet sich in ca. 200 Metern Entfernung und ist fußläufig schnell erreichbar.

Die dargestellte Position der Immobilie ist nur eine ungefähre Angabe.

Direktanfrage
 SSL-verschlüsselt
Ihr Ansprechpartner

Jimmy Nguyen

Assistenz der Geschäftsführung

  • Dualer Student für Immobilienwirtschaft (B. A.)