Anlagen / Links

Objekt­beschreibung

Diese liebevoll gepflegte Doppelhaushälfte aus dem Jahr 1997 bietet alles, was sich Familien wünschen: Platz, Komfort, einen schönen Garten und eine ruhige Lage. Mit rund 143 m² Wohnfläche und etwa 209 m² Nutzfläche auf vier Ebenen ist hier ausreichend Raum zum Wohlfühlen, Spielen und Zusammenleben vorhanden.

In den letzten Jahren wurde das Haus umfassend modernisiert und präsentiert sich heute in einem hervorragenden Zustand. Im Jahr 2020 wurden eine hochwertige Einbauküche mit Granitarbeitsplatte, Geräten von Miele und einem Bora Kochfeldabzugssystem, neue Kunststoff-Alu-Fenster und -Außentüren mit Isolierverglasung sowie ein moderner Vinylboden im Erdgeschoss eingebaut. Zusätzlich wurden zwei Außentüren in derselben Qualität zum Balkon im 1. Obergeschoss eingebaut. Auch das Gäste-WC wurde vollständig erneuert. 2024 wurden im 1. Obergeschoss alle Dachflächenfenster (Velux) neu eingebaut.

Darüber hinaus erfolgten zahlreiche weitere Verbesserungen: die komplette Neuverkleidung der Dachgaube und teilweise Erneuerung der Regenrinne und Fallrohre im Jahr 2025 und ein neues Garagentor (Sektionaltor). Der Balkon erhielt neue Fliesen, ein modernes Geländer und teilweise neue Holzbalken (zur Regenseite verblecht). Der Vorplatz wurde bereits vor sechs Jahren neu gepflastert.

Das Herzstück des Hauses ist der großzügige Wohn- und Essbereich mit gemütlichem Kachelofen aus Schamotte (Feuerstättenbescheid nach neuem Heizungsgesetz 2024 erteilt) , der in der kalten Jahreszeit für behagliche Wärme sorgt. Große Fensterflächen lassen viel Tageslicht herein und schaffen eine angenehme Wohnatmosphäre.

Die Fußbodenheizung im Erdgeschoss sowie im Badezimmer und der gepflegte Garten mit sonniger Südost-Ausrichtung machen das Wohnen hier besonders angenehm. Im Garten befinden sich zwei Terrassen, die an sonnigen Tagen zum Entspannen, Spielen oder gemütlichen Beisammensein einladen.

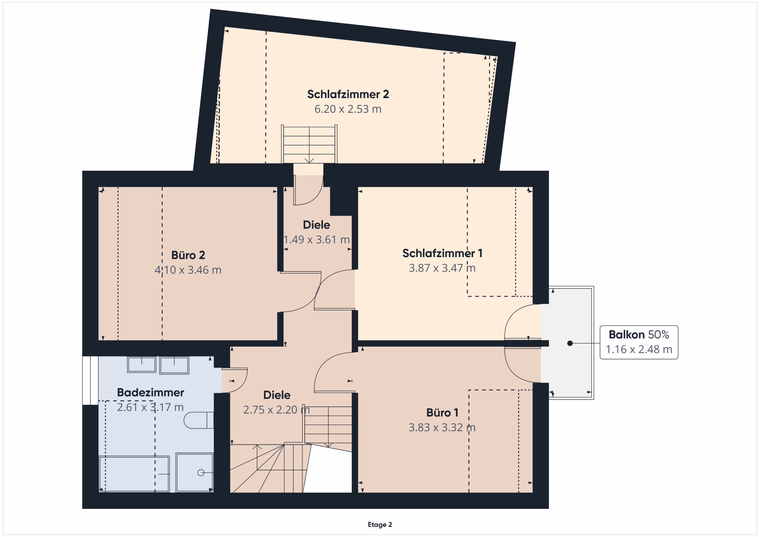
Im Dachgeschoss befindet sich ein helles Studio, das sich ideal als Kinderzimmer, Spielbereich oder Rückzugsort für Teenager eignet. Der Hobbyraum im Untergeschoss verfügt über eine Sauna, eine Dusche und ein Waschbecken, perfekt für Entspannung nach einem langen Tag oder als privater Wellnessbereich.

Das Haus verfügt über ein überdurchschnittlich großes Angebot an Steckdosen, was den Wohnkomfort und die Flexibilität im Alltag spürbar erhöht.

Zum Haus gehören eine Einzelgarage mit direktem Gartenzugang sowie ein Außenstellplatz. Vor dem Haus befindet sich eine praktische Fahrradgarage, die zusätzlichen Stauraum für Fahrräder oder Gartengeräte bietet.
Vor der Garage sind eine Wallbox, ein Wasseranschluss, ein CEE-Stecker für Campingfahrzeuge sowie eine 220 Volt-Außensteckdose vorhanden.
In der Garage selbst steht ein Starkstromanschluss zur Verfügung.

Bestimmte Möbelstücke, Lampen (Smart-Home-Integration möglich) und Einrichtungsgegenstände können nach Absprache gegen Ablöse übernommen werden.

Ausstattung

- Hochwertige Einbauküche (2020) mit Granitarbeitsplatte, Miele Geräten und Bora-Kochfeldabzug (Abluft nach Außen)

- Vinylboden im Erdgeschoss (2020)

- Wände und Decken neu gestrichen (2020)

- Neues Glas-Vordach am Eingang (2020)

- Elektrik im Erdgeschoss erneuert

- Elektrische Rollläden und elektrische Markise im Küchenbereich im Erdgeschoss (2020)

- Haustüre als Sicherheitstüre mit Schall- und Wärmeschutz (2020)

- neue Kunststoff-Alu-Fenster und -Außentüren mit Isolierverglasung im Erdgeschoss und 1. Obergeschoss (2020)

- Alle Dachflächenfenster im 1. Obergeschoss neu, von Velux mit Plissees und Sonnenschutz ausgestattet (2024)

- Komplette Neuverkleidung der Dachgaube (Badezimmer 1. OG) und teilweise Erneuerung der Regenrinne und Fallrohre im Jahr 2025

- Neues Fenster im Badezimmer mit Plissee und neuem Rollladen (2025)

- Neues Garagentor (2024)

- Garage renoviert (2020)

- Fußbodenheizung im Erdgeschoss und im Badezimmer im 1. Obergeschoss

- Kachelofen aus Schamotte (Grundofen, Feuerstättenbescheid nach neuem Heizungsgesetz 2024 erteilt)

- neue Gasheizung aus dem Jahr 2011 (Rexroth)

- Balkon mit neuen Fliesen, Geländer und Holzbalken (obere Außenbalken gegen Korrosion neu verblecht)

- Vorplatz vor sechs Jahren neu gepflastert

- Starkstromanschluss in der Garage

- Wallbox, Wasseranschluss, CEE-Stecker für Campingfahrzeuge sowie eine 220 Volt-Außensteckdose vor der Garage

- Wasseranschluss für den Garten und Außensteckdose auf der Terrasse

- Einzelgarage mit Gartenzugang

- Gäste WC (2020) neu

- Dachgeschossausbau 2004

- Hobbyraum mit Sauna, Dusche, Waschbecken und Hebeanlage (2003)

- Waschraum mit Arbeitswaschbecken und zwei Waschmaschinenanschlüssen

- Haus steht in "schwarzer Wanne"

- Wasserleitungen wurden in der Küche erweitert (2020). Alle Wasserrohre wurden 1997 aus rostfreiem Edelstahl installiert (Vorteile gegenüber Kupfer: korrosionsbeständig, langlebig, keine Abgabe von Schwermetallen, hohe Druck- und Temperaturbeständigkeit, hygienisch & glatte Innenflächen, mechanische Stabilität)

- Neuer Heizungsfühler außen (2024)

- frischer Anstrich der Außenfassade (2024)

- Unterstand für Kaminholz 2023 neu gebaut

- Überdurchschnittlich viele Steckdosen im gesamten Haus

- Alle Fenster, Velux-Dachflächenfenster und Außentüren mit Schall- und Wärmeschutz ausgestattet

- Alle Rollläden erneuert (2020-2024)

- Kaminanlage überarbeitet, beide Abzugsrohre für Gas- und Holzkamin neu verzinkt bzw. erneuert (2024)

- zusätzliche Lichtquellen in Küche und Esszimmer installiert

Sonstige Informationen

Sie können die Immobilie über folgenden Link vorab virtuell besichtigen: https://tour.giraffe360.com/b0656a6bc3ee4b27bbb254c7f04a7e74/?nocookie

Objektdaten
  • Objekt ID
    10477
  • Objekttypen
    Doppelhaushälfte, Haus
  • Adresse
    86343 Königsbrunn
    Bayern
  • Etagen im Haus
    4
  • Wohnfläche ca.
    143,33 m²
  • Grund­stück ca.
    255 m²
  • Nutzfläche ca.
    209,25 m²
  • Balkon-/Terrassen­fläche ca.
    12,18 m²
  • Zimmer
    6
  • Schlafzimmer
    5
  • Badezimmer
    2
  • Separate WC
    1
  • Balkone
    1
  • Terrassen
    1
  • Heizungsart
    Zentralheizung, Fußbodenheizung
  • Wesentlicher Energieträger
    Gas
  • Baujahr
    1997
  • Letzte Modernisierung
    2025
  • Zustand
    gepflegt
  • Erschließung
    vollerschlossen
  • Bauweise
    Massiv
  • Verfügbar ab
    nach Vereinbarung
  • Stellplätze gesamt
    1
  • Provisionspflichtig
    Ja
  • Käufer­provision
    3,57 % inkl. MwSt.
  • Kaufpreis
    690.000 EUR
Ausstattung / Merkmale
  • Abstellraum
  • Badewanne
  • Balkon
  • Dusche
  • Einbauküche
  • Fliesenboden
  • Garage
  • Gartennutzung
  • Gäste-WC
  • Kamin
  • Keller
  • Laminatboden
  • Massivbauweise
  • Nichtraucher
  • Parkettboden
  • Satteldach
  • Sauna
  • Separates WC
  • Tageslichtbad
  • Terrasse
Energieausweis

nicht erforderlich

Ein Energiepass ist nicht erforderlich - Grund: Objekt ohne vorliegenden Energieausweis gem. § 87 (1) GEG

Lage

Die Immobilie befindet sich in einer ruhigen und sehr beliebten Wohnlage von Königsbrunn im südlichen Landkreis Augsburg. Die Stadt liegt auf dem Lechfeld und grenzt direkt an das Stadtgebiet von Augsburg an. Königsbrunn verbindet städtischen Komfort mit einem hohen Maß an Lebensqualität und einer angenehmen, familiären Atmosphäre.

Das Wohnumfeld ist geprägt von gepflegten Doppelhaushälften und Reihenhäusern, kleinen Gärten und viel Grün. Das Haus liegt in einer verkehrsberuhigten Spielstraße, in der Kinder sicher spielen und sich frei bewegen können. Nur wenige Schritte entfernt befindet sich ein Spielplatz, der sich ideal für Familien mit kleinen Kindern eignet.
Familien schätzen hier die ruhige Nachbarschaft, die Sicherheit und die freundliche Atmosphäre. Kinder können unbeschwert draußen spielen, Fahrrad fahren oder Freunde in der Nähe treffen. Spazierwege, Spielplätze und Freizeitmöglichkeiten befinden sich in unmittelbarer Umgebung. Der eigene Garten bietet zusätzlich Platz für Erholung, gemeinsames Grillen oder das Spielen der Kinder im Freien.

Königsbrunn bietet eine hervorragende Infrastruktur, die besonders für Familien ideal ist. Mehrere Kindergärten, Grundschulen und weiterführende Schulen befinden sich in der Nähe. Einkaufsmöglichkeiten für den täglichen Bedarf, Supermärkte, Bäckereien, Apotheken, Ärzte sowie gemütliche Cafés und Restaurants sind ebenfalls schnell erreichbar. Auch Sportvereine, Musikschule und zahlreiche Freizeitangebote sorgen für ein vielfältiges und lebendiges Umfeld.

Besonders hervorzuheben ist die aktuelle Neugestaltung des Stadtzentrums. Im Rahmen einer umfangreichen städtebaulichen Erneuerung wurde der zentrale Bereich rund um die Bürgermeister-Wohlfarth-Straße aufwendig modernisiert. Ziel ist die Schaffung eines attraktiven Stadtzentrums mit hoher Aufenthaltsqualität, neuen Grünflächen, modernen Gehwegen und einem lebendigen Stadtkern mit Gastronomie und Einzelhandel. Die Fertigstellung des neuen Zentrums ist für das kommende Jahr geplant. Diese umfangreiche Stadtentwicklung ist Teil einer mehrjährigen Investition in Millionenhöhe, die das Zentrum von Königsbrunn nachhaltig aufwertet und den Standort langfristig stärkt.

Die Lage überzeugt durch eine sehr gute Verkehrsanbindung. Über die Bundesstraße 17 erreicht man Augsburg in etwa 10 bis 15 Minuten und auch die Anbindung zur Autobahn A96 Richtung München ist schnell gegeben. Zusätzlich ist die Autobahn A8, die in Richtung München und Stuttgart führt, in rund 20 Minuten erreichbar.
Der öffentliche Nahverkehr ist bestens ausgebaut. Die Straßenbahnlinie 3 verbindet Königsbrunn direkt mit der Augsburger Innenstadt und bietet somit eine bequeme Möglichkeit für Berufspendler. Ergänzend stehen mehrere Buslinien zur Verfügung, die Königsbrunn mit den Nachbarorten verbinden.

Königsbrunn ist umgeben von zahlreichen Grünflächen und Naherholungsgebieten. Besonders beliebt ist der Ilsesee mit seinen gepflegten Liegewiesen, Grillbereichen und Spielplätzen – ein ideales Ziel für Familienausflüge an warmen Tagen. Auch der Mandichosee und die Königsbrunner Heide sind schnell erreichbar und laden zu Spaziergängen, Fahrradtouren und sportlichen Aktivitäten ein. Darüber hinaus bietet das städtische Freizeitangebot mit Hallenbad, Sportanlagen, Eishalle und kulturellen Veranstaltungen vielfältige Möglichkeiten für die Freizeitgestaltung.

Die dargestellte Position der Immobilie ist nur eine ungefähre Angabe.

Direktanfrage
 SSL-verschlüsselt
Ihr Ansprechpartner
Markus Dohr, Pienzenauer Immobilien
  • Herr Markus Dohr
    Immobilienkaufmann (IHK) Geprüfter Immobilienbewerter für Wohnimmobilien (PMA)
  • Pienzenauer Immobilien

Jimmy Nguyen

Assistenz der Geschäftsführung

  • Dualer Student für Immobilienwirtschaft (B. A.)